Kehlen

Kehlen werden oft zur Darstellung von Graten (Knicken) eingesetzt. Es handelt sich hierbei um spezielle Zwangslinien, die bei offenen Böschungen wie eine künstliche Verlängerung der Unterkante wirken. Im Bereich einer Kehle bleibt die Rechtwinkligkeit der Schraffen erhalten, es findet also keine Angleichung statt. Vielmehr werden die Schraffen mit der Kehle verschnitten.
|
Die Definition beim OKSTRA (Objektkatalog für das Straßen- und Verkehrswesen) lautet: Eine Böschung kann auch Kehlen enthalten; eine Kehle ist ein Knick innerhalb oder am seitlichen Rand einer Böschung. Sie verbindet geradlinig (d. h. durch ein Geradenstück) einen Stützpunkt der Böschungsoberkante mit einem Stützpunkt der Böschungsunterkante und beeinflusst die Schraffendarstellung. |
Wurden Kehlen gewählt, werden diese in der in den Optionen festgelegten Farbe angezeigt, solange die Vorschau aktiv ist. Gleichzeitig wird deren Anzahl in Textform angezeigt.
|
|
Kehlen hinzufügen |
Ermöglicht das Hinzufügen beliebig vieler Kehlen. Hierbei sollten nur vorhandene Stützpunkte der Böschungskanten gewählt werden. (Objektfang Endpunkt) |
|
|
Kehlen löschen |
Ermöglicht das Entfernen beliebig vieler Kehlen. |
|
Böschungsverlauf ohne Kehlen
|
Definition von Kehlen
|
|
Böschungsverlauf mit Kehlen
|
Böschungsverlauf mit virtuellen Kehlen
|
In den Optionen sind per Vorgabe Virtuelle Kehlen aktiviert. Hierbei handelt es sich um virtuelle Verlängerungen der Unterkante zu den Endpunkten der Oberkante. Das Schraffenbild gleicht dem von Kehlen, jedoch wird die Kehllinie nicht gezeichnet.
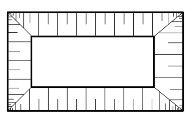
Ein typisches Beispiel für die Verwendung von Kehlen sind z. B. Baugruben. Hier wäre eine sternförmige Anordnung der Schraffen strenggenommen falsch und würde nicht die tatsächliche Situation darstellen.
|
Baugrube ohne Kehlen
|
Baugrube mit Kehlen, die Flächen laufen an den Graten korrekt zusammen.
|
Kehlen haben an den Böschungsenden nur dann eine Auswirkung, wenn die Böschungsunterkante kürzer als die Böschungsoberkante ist. Ist die Unterkante länger als die Oberkante. können die Schraffen nicht mit der Kehllinie verschnitten werden. Auch ohne Kehlendefinition entstehen Schraffen nur dort, wo eine Oberkante vorhanden ist.
|
Unterkante ist kürzer als Oberkante
|
Unterkante ist länger als Oberkante, Kehle hat keine Auswirkung
|
|
Anmerkung: Beim Definieren von Kehlen ist am besten der Objektfang Endpunkt zu verwenden. Kehlen werden beim Zeichnen zu normalen Schraffurlinien und auf dem dafür vorgesehenen Layer erstellt. Sie erhalten allerdings Kennungen, dass es sich um Kehlen handelt. |









